


一、水錘效應
在有壓管路系統中,由于某些外界原因(如閥門突然開啟或關閉,水泵機組啟動或突然停止等),使得水流速度突然發生較大變化,從而引起壓強急劇升高和降低,此現象就是水擊,或水錘效應。水錘使壓強大幅度波動,可導致管道強烈的振動,產生噪聲,損壞一些設備和管件。
1、如果系統設計欠佳、管道較小的時候,產生的水錘可以導致管道強烈的振動、造成沖擊會很大,有可能對系統的管道、管件和設備造成破壞。
2、如果選用水泵的富裕揚程過高,在啟動水錘的沖擊下,有時砂缸會象吹氣球一樣膨脹、甚至爆裂。
3、如果游泳池與機房位置高差很大時,開啟和關閉水泵和閥門,也會造成水錘的水擊現象,損壞系統的設備和管閥。所以說,有效的防止水錘現象,也是實現設備安全的主要因素。


解決辦法
止回閥:依靠液體本身的流動,自動打開或關閉密封擋板,從而形成液體的單向流動狀態,其作用為保證游泳池、水療池水處理系統管路中的水流定向流動,防止管路中的水流倒流,因水不能倒流,不產生動能,便防止了水錘的產生,有效的保護泳池水處理設備安全。
二、泳池設計和運行中的設備安全
2.1 壓力探頭
上文闡述了由負壓真空探頭構成的保障人身安全的真空負壓斷電系統和破真空泄壓安全裝置,以下介紹的壓力探頭是保障設備安全的有效措施。
人們在反沖洗等操作中、在關停系統中某個功能的設備時、在設備檢修維護中,有時會出現閥門誤操作的現象,不該關閉的閥門給關上了,或者是閥門、管件、管道出現了故障被堵塞了,這些都會使系統的壓力急劇增大而使水泵、砂缸、管閥等設備爆裂。如果在水泵出水口處安裝了壓力探頭,當系統壓力達到一定限度時,水泵的電源就會自動切斷,從而保證了設備的安全。
2.2 不同高差的處理方式
對于當游泳池與機房高差約5米的正常壓力循環過濾系統、當游泳池與機房高差約10米的負壓力過濾系統或重力過濾系統、當游泳池與機房高差約20米的重力循環過濾系統這三種情況做了探討,研究游泳池與機房位置不同高差時泳池水泵的選擇,也是解決游泳池設備安全的方法。
2.2.1正常落差約5米時的壓力過濾系統
有壓管路系統中水擊現象(水錘效應)及其復雜,在游泳池工程實踐中,為了使問題簡化,本文只探討由于開啟水泵所造成水錘的情況,而且對于水力學的原理和計算,本文只做描述和簡化的統計,不做精確的量化分析。

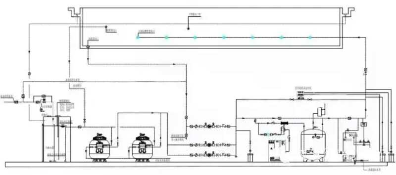
圖1. 泳池與機房的高差約5米時可用的循環過濾系統
有一高檔酒店,如果游泳池與機房的落差只有一個層高(約5米),可以采用上圖所示的循環過濾系統,當然可以把池壁給水改成池底給水,這就變成標準的逆流式循環方式。而在實際工程中,當有時做成池底給水有困難或做不到時,就可采用球型縮口的池壁給水,也會具有很好的過濾效果和水質。當然均衡水箱也可以做在泳池旁邊與池體等高。
如果按照技術標準和規范設計,選用的管道尺寸、砂缸大小、水泵揚程流量等都符合標準,系統在砂缸初始過濾的運行狀態下,一般來說,泵前的真空表的讀數小于-0.2bar,泵后的壓力表約0.8—1bar,砂缸上的壓力表的讀數與泵后壓力表讀數很接近。當砂缸上的壓力表的讀數到1.2—1.3bar時,就要對砂缸進行反沖洗,反沖洗前砂缸最大壓力不得超過1.5bar。在反沖洗前正常壓力時,系統的壓頭小于15米,因此循環過濾水泵的揚程選在15米是比較合適的。
如果選用的水泵揚程是15米,在水泵啟動時不到1秒鐘的時間里,馬達即可從靜止狀態加速到額定轉速,如果只考慮系統的摩擦力,此時所克服的靜摩擦就是動摩擦的3倍,即1.5bar×3=4.5bar。這個壓力就是壓力過濾器的靜壓測試壓力。由于水流的瞬時沖擊,就造成了水泵的啟動水錘,但它不超過砂缸的耐壓限度。
這是落差為5米時的情況,此時的靜壓約為0.5bar,所以在壓力表讀數所反映才系統總的壓頭里也應該包括了這個數值,也可以把此時的靜壓忽略不計。

2.2.2大落差時對過濾系統的特殊處理
如果泳池到機房的落差很大時,水的靜壓也就不能忽略了,管道加長后水擊的風險相應加大,以下探討落差約為10米的負壓過濾系統和落差約為20米的重力過濾系統,以防止水泵啟動水錘的水擊現象。
(1) 落差約10米的負壓過濾系統
如果泳池到機房的落差為10米時,由于管道長度增加了很多,沿程阻力和局部阻力也要相應增大,此時的靜壓也增加為1bar,如果采用上述的壓力過濾系統和同樣的水泵,在水泵啟動時不到1秒鐘的時間里,由于水流水壓的瞬時沖擊,就造成了水泵更大的啟動水錘,如果還采用壓力過濾的循環過濾系統,石英砂過濾器、泵體和管件常常會被水擊而損壞。
此時可以采用石英砂過濾器的負壓過濾系統,如圖所示。這樣可以減少對砂缸的水擊現象,對砂缸起到一定的保護作用。但是采用負壓過濾系統,在反沖洗時,要考慮特殊的泵后三通排污或采用專用反沖洗水泵。由于反沖洗時切斷了原來的循環過濾系統、只打開均衡水箱—水泵—砂缸—市政排污的很短的管道系統,反沖洗時砂缸砂層膨脹又使其阻力變小,此時砂缸的承壓很小。

圖2. 泳池與機房的落差約10米時可用負壓過濾系統
當然,由于泳池與機房的落差10米時的靜壓為1bar,在壓力過濾時,砂缸初始壓力約為0.8—1bar,所以利用重力的靜壓1bar就可以進行重力過濾,這種過濾方式將在下一個小節里詳述。
(2) 落差約20米的重力過濾系統
如果泳池到機房的落差為20米時,由于管道長度進一步增加,沿程阻力和局部阻力也增大了很多,此時的靜壓也增加為2bar,如果采用上述的壓力過濾系統和同樣的水泵,在水泵啟動時不到1秒鐘的時間里,由于水流水壓的瞬時沖擊,就造成了水泵巨大的啟動水錘,如果還采用壓力過濾的循環過濾系統,石英砂過濾器、泵體和管件會很容易被水擊而損壞。此時如果采用負壓過濾的方式,雖然對水錘的影響會消除一些,但是它存在負壓過濾時流量不易掌握和控制、反沖洗系統不易實現等缺點。此時可以采用石英砂過濾器的重力過濾系統,如圖所示。
石英砂過濾器的重力過濾系統,其池水靠重力的作用從溢水槽經過砂缸過濾后流入均衡水箱,這是一個開式的水系,目的是靠重力實現過濾;此時整個系統里存在著兩個水系,另一個水系是通過提升泵把過濾后的凈水提升到游泳池里,它還要同時完成凈水的加熱、氯消毒和臭氧消毒等功能。

圖3. 泳池與機房的落差約20米時可用重力過濾系統
水位控制的3個節點是低位報警、自動停泵、自動補水,中位自動啟動砂缸前的電動閥、自動開啟提升泵,高位報警、自動排水、自動關閉砂缸前的電動閥。在砂缸前同時安裝手動流量調節閥和電動閥,當電動閥打開時,根據流量計的流量來調節手動流量調節閥,使調節的流量與砂缸設計的循環流量相等,這就是手動流量調節閥所需的固定位置。當然,在砂缸前的電動閥之前,安裝流量閥和減壓閥也很重要,使壓力約為1bar、流量等于設計的循環流量。
反沖洗就可直接利用池水的重力來進行,由于此時水流方向是從砂缸底部向上部反向沖洗,原來過濾循環時的沙層壓緊狀態變成了沙層膨松狀態,阻力降低;又因為反沖洗是排污管直接從砂缸的多項閥排出,池水就無需經過過濾時的后續管道,使實際的管道變短,壓力損失大大的降低,所以在反沖洗時總的壓降很小,反沖洗流量和強度都會得到較大的加強,能夠滿足反沖洗的要求。
這是一個實際的案例,工程造價、設備運行、操作維護、節能節水和水質達標都具有現實的特殊性、可操作性和先進性。
3.分析和討論
在常規情況下,水泵等各種設備靠近游泳池,層高約為5米時,可以采用壓力過濾系統,水泵應選擇低揚程大流量水泵,按標準設計的管道和選用的砂缸,不會因為開泵停泵所產生的水錘破壞砂缸等設備和管閥。
如果泳池到機房的落差為10米時的靜壓為1bar,由于管道阻力增大,靜壓也增加為1bar,此時可采用石英砂過濾器的負壓過濾系統,在工作運行時就可以抵消一部分壓力,已達到使用要求。在壓力過濾時,砂缸初始壓力約為0.8—1bar,所以利用重力的靜壓1bar就可以進行重力過濾。
如果泳池到機房的落差為20米時,由于管道長度進一步增加,沿程阻力和局部阻力也增大了很多,此時的靜壓也增加為2bar,開泵停泵、開關閥門時,水流速度發生急大的變化,就引起的較大的水錘,可以破壞過濾設備、管道、水泵和閥門,這時就可以采用石英砂過濾器的重力過濾系統來實現其運行。
瀚宇水處理設備一家從事專業批發、銷售泳池、桑拿、洗浴、水療、休閑、娛樂等游泳池水處理設備的公司,在中國境內大型城市設有分支機構、倉庫及售后服務中心。自公司成立以來,不斷從國內外引進泳池、桑拿國際品牌,伴隨著中國經濟的發展,也見證著泳池、桑拿行業的發展。我們以合理的價格,優質的產品,專業的服務贏得市場。
竭誠為廣大客戶提供各種水處理工程的設計方案、技術咨詢以及專業的安裝調試等優質服務,熱烈歡迎廣大客戶來函、來電或親臨本司洽談訂購!
咨詢熱線:15333812880
辦公地址:鄭州市高新區科學大道金梭路正弘高新數碼港12層883、884室
